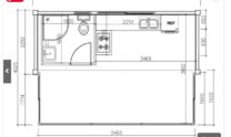
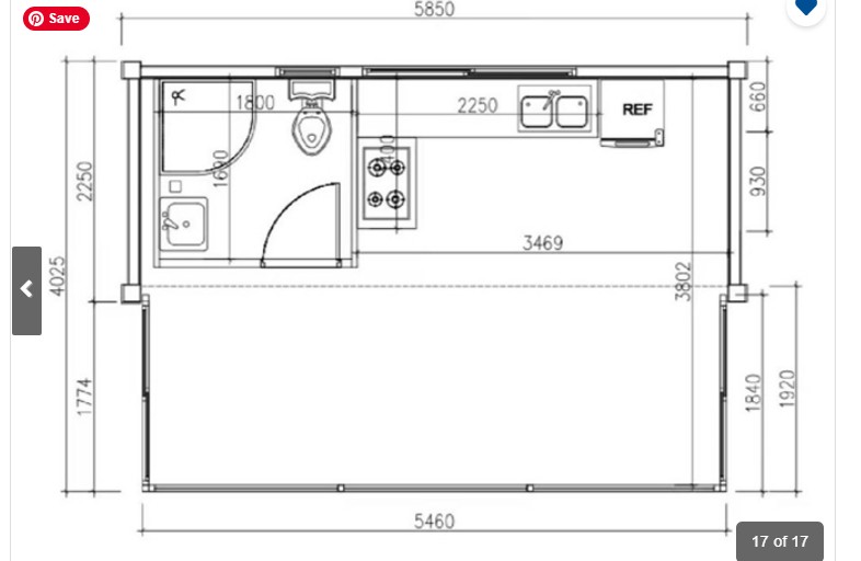
Transportable Home 20ft Self Contained Bedroom Sliding Home 6000*4500 clearance sale

bedroom
Open Lounge and BatroomBedrooms
bedroom
1Bathrooms

As part of our clearance sale, selected units are available at special discounted prices, offering excellent value for money. Each home expands on-site to create a comfortable living space and can be delivered ready for setup.

Perfect for private land use where council approvals may not be required.

Limited clearance stock available – enquire today.

Standard Inclusions Pre-Fab Expandable Unit: Fully insulated and pre painted in a high eco-energy efficient Mist White finish. Walls & Roof: 75mm EPS insulated panels designed to keep the unit cool in summer and warm in winter. Chassis: Heavy-duty steel frame construction for strength and easy transport. Flooring: Quality Vinyl / SPC flooring in your choice of colour. Electrical: 4 LED lights and 4 power points installed. Doors: aluminium sliding glass entrance door. Windows: 2 aluminium sliding windows, powder-coated, Full Bathroom & Stone Kitchen Bench Please check if stock is still availableThis may be available in Jandakot WA

Price for Purchasing

Size: 6000mm*4500$ 19,000+GST
WordPress Image Lightbox Plugin